buildtoo_house
ED. VISCONDE DA LUZ I

DESCRIPTION
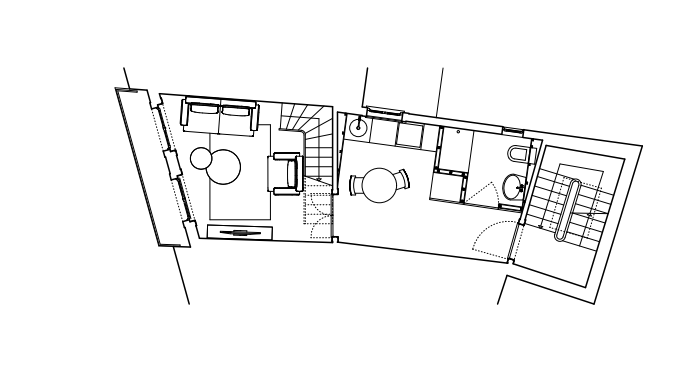
The location of the building is in the downtown of Coimbra, inserted in a tight urban plan characteristic of the historical areas. It is a complete rehabilitation of the building so its implementation area does not show any changes. The main purpose of the intervention is to give back and improve the habitability of the building that currently does not exist.

Mainly built with half-walls with the adjacent buildings, except for the main facade turned to the public street and a small section of the side facade turned to the lobby that allows the entrance of natural light in the posterior rooms.

The idea of the project is to solve all the residences program with a continue furniture piece which helps to control costs as intended in the project.
DATA SHEET
Construction Ownder | Particular
Location | Coimbra
Type | Building Rehabilitation
Area | 188m²
Value of the project | 150 00,00€
Year of the project | 2017
Year of the Construction | 2019

PROVIDED SERVICES
Architecture
Construction Management and Negotiation
Follow-up and Construction Supervision
Security Coordination
Planta 2
Imagem da cozinha
Imagem da Sala
Imagem da sala
Imagem do Quarto
 
contador de acessos